一、特性及應用
SJG系列風機應用斜流子午加速設計方法,采用鼓形或直形風簡、錐形輪毅、扭曲翼形葉片結構形式。兼有離心式風機壓力系數較高和軸流式風機流量系數較大的特點,具有噪聲低、耗電省、結構緊湊等優點,臥式、立式安裝均可。廣泛適用于工業和民用建筑的送排風系統。
可根據輸送介質的要求,制成防腐、防爆型,用于輸送有腐蝕性、易燃易爆的氣體。
本系列風機亦可制成屋頂式,表示方法為機號后面加字母"W"。
二、型號說明
三、性能參數表
SJG型
GXF型
GXF型
注:雙速風機重量參考同號中高速風機的重量。
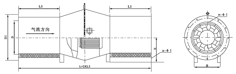
四、SJG型風機外形尺寸表(單位:mm)
注:風機出廠時法蘭一般不打孔。n-φ1僅供參考,若要打孔請用戶在訂貨時說明.
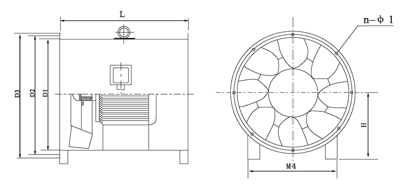
五、XSJG型加消音風機外形尺寸表(單位:mm)


注: XGXF-I型風機進出口加設消聲器,可消聲6-10dB(A),亦可加長消聲器, 以降底更大數值的噪聲。
六、GXF型風機外形尺寸表(單位:mm)
GXF-A型低速、GXF-B型外形尺寸表
注: 1.GXF型亦可加裝進出口消聲器,加裝方法同XSJG型,一般可消聲6- 10dB(A)。
2.風機出廠時法蘭一般不打孔n-φ1僅供參考,若要打孔請用戶在訂貨時說明。
主站蜘蛛池模板: 渝北区| 五寨县| 阿拉善盟| 若尔盖县| 珲春市| 马公市| 大埔区| 茌平县| 板桥市| 固镇县| 柘荣县| 锡林郭勒盟| 凌源市| 南平市| 当涂县| 七台河市| 景东| 钟祥市| 方城县| 额尔古纳市| 桃园县| 新邵县| 东明县| 锦州市| 晋州市| 洞口县| 屏边| 霍城县| 岗巴县| 上蔡县| 平凉市| 九台市| 南安市| 南皮县| 奉化市| 桃园县| 哈密市| 兴国县| 中方县| 绥德县| 陵川县|